NOVÉ OBCHODNÍ PLOCHY, PRAHA 9

Zpět na projekty
Typ projektu:
Komerční
Stav:
Dokončeno
Ve fázi:
Dokončeno
Lokalita:
Za černým mostem, Praha 14

Ing. Aleš Kilián

Mobil:724915171
Tisk

Podrobné informace

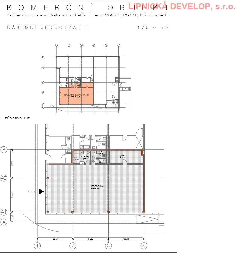
Naše společnost Vám zprostředkovala prodej obchodních jednotek, které jsou v fázi výstavby v ulici Za Černým Mostem / Jordánská, Praha - Hloubětín, parc. č. 1295/8 a 1295/1, k.ú. Hloubětín. Obchodní plochy jsou umístěny 5 minut pěšky od stanice metra Rajská zahrada, trasa B.