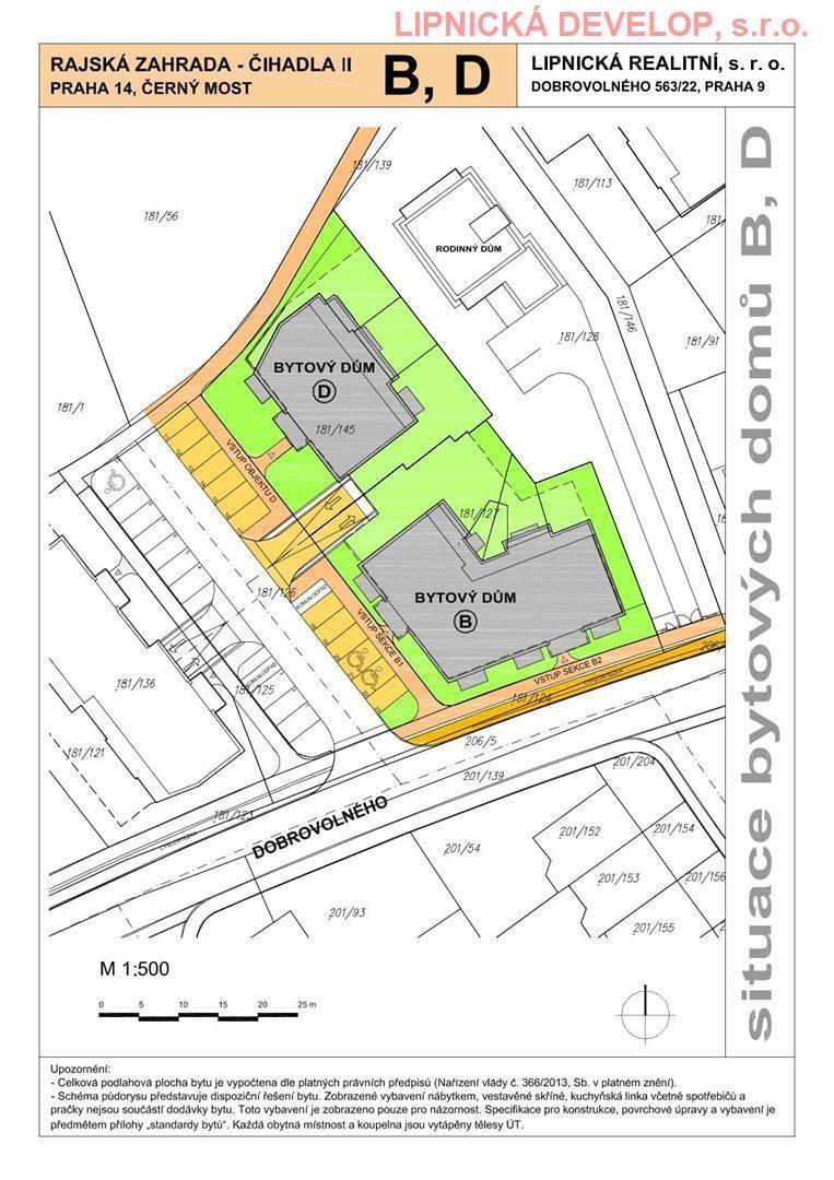
AREÁL RAJSKÁ ZAHRADA - ČIHADLA II, BYTOVÉ DOMY "B, D", PRAHA 9,

Prodáno D.02.2
Zpět na výsledek nabídek
Cena:
5 275 300 Kč
Typ zakázky:
Prodej
Lokalita:
Praha 14
Dispozice:
1+kk
Plocha:
39 m2
Evidenční číslo:
D.02.2

Ing. Aleš Kilián

Mobil:724915171
Tisk

Podrobné informace

Prodej nového bytu s označení D.02.2 o dispozici 1+kk v developerském projektu AREÁL RAJSKÁ ZAHRADA - ČIHADLA II, BYTOVÉ DOMY "B", "D", PRAHA 9. Byt se nachází v bytovém domě D. Podlahová plocha bytu je 39,0 m2 (užitná plocha bytu je 37,1 m2) + sklepní kóje o výměře 1,9 m2 + balkón o výměře 5,3 m2. Byt se nachází ve 2. nadzemním podlaží domu. Byt se skládá z obývacího pokoje, chodby, koupelny + WC.

VELIKOU VÝHODOU tohoto developerského projektu je docházková vzdálenost od stanice metra Rajská zahrada, trasa B (cca 7 minut pěšky) a s tím související výborná dostupnost do centra Prahy prostřednictvím metra, max. 15 minut. Je možné využít i autobusovou dopravu s tím, že stanice autobusu je vzdálena cca 200 metrů od domu. Dále je v místě blízké napojení na městské komunikace a dálnici D11 na Hradec Králové a rychlostní silnice na Mladou Boleslav.

Dům se nachází v docházkové vzdálenosti přírodního parku Klánovice - Čihadla, který je největší přírodní park v Praze s hektary zachovalého lesního porostu. Přírodní park Klánovice - Čihadla má rozlohu 2 222,8 ha. Lesy jsou tradičním vycházkovým místem s hustou sítí cest (včetně turisticky značených stezek a cyklotras), s okružní naučnou stezkou, s dětských hřištěm a řadou odpočívadel. Kromě přírodního parku Klánovice – Čihadla se v blízkosti nachází též Kyjský rybník (koupaliště), cyklotrasy, squash centrum, bowling atd. V nedalekém sousedství se nachází golf resort Black Bridge, kde si buď jako začátečníci nebo pokročilí golfisté můžete užít Vaše volné chvíle.

Nedaleko stanice metra Rajská zahrada je veškerá občanská vybavenost – pošta, nákupní středisko, banky, obchody služeb atd. Pouze o jednu stanici dále metrem (stanice - Černý most) se nachází jedno z největších nákupních center v České republice – Centrum Černý Most vč. velkoprodejen Hornbach, IKEA, Makro, multikina, fitness centrum atd. V nedalekém Hloubětíně se nachází plavecký areál. Blízké napojení na městské komunikace a dálnici D11 na Hradec Králové a rychlostní silnice na Mladou Boleslav.

Typ nemovitosti:
Byt
Dispozice:
1+kk
Podlahová plocha:
39 m2
Užitná plocha:
37,1 m2
Patro:
2. patro
Konstrukce budovy:
Smíšená
Typ vlastnictví:
Osobní
Stav nemovitosti:
Novostavba
Energetická náročnost budovy:
B - Velmi úsporná
Výtah:
Ano
Balkón:
Ano
Sklep:
Ano
Možno hypotéka:
Ano
 

photo_2photo_3photo_4photo_5photo_6